您的位置:主页 > 电梯产品 > 家用电梯 >

旧小区加装电梯

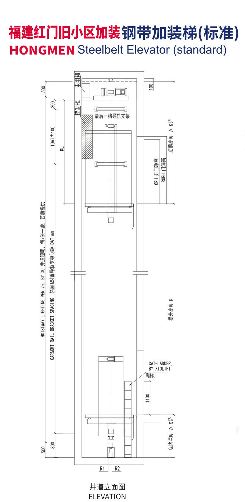
额定荷载:500KG
适合场合:旧小区
最大层数:7层
产品描述:福建红门电梯有限公司所研发的旧小区加装电梯项目采用的是HM-JZ01系列钢带加装梯,更安全更省心……...

0595-88339298

旧小区加装电梯 旧小区加装电梯 旧小区加装电梯 旧小区加装电梯 旧小区加装电梯 旧小区加装电梯 旧小区加装电梯 旧小区加装电梯 旧小区加装电梯 旧小区加装电梯 旧小区加装电梯 旧小区加装电梯 旧小区加装电梯 旧小区加装电梯 旧小区加装电梯

上一篇:没有了 下一篇:没有了

在线询价

用手机扫描二维码关闭